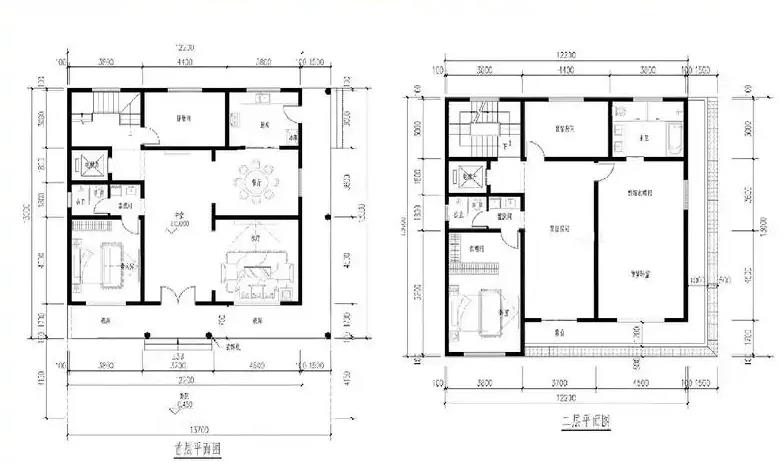
《1400多套农村自建房别墅图纸合集》涵盖了多种风格和布局的设计,包括现代简约、欧式豪华、新中式等,从一层到多层,满足不同需求。图纸提供DWG源格式文件,方便根据实际需求修改和调整。


声明:本站所有文章,如无特殊说明或标注,均为本站原创发布。任何个人或组织,在未征得本站同意时,禁止复制、盗用、采集、发布本站内容到任何网站、书籍等各类媒体平台。如若本站内容侵犯了原著者的合法权益,可联系我们进行处理。

《1400多套农村自建房别墅图纸合集》涵盖了多种风格和布局的设计,包括现代简约、欧式豪华、新中式等,从一层到多层,满足不同需求。图纸提供DWG源格式文件,方便根据实际需求修改和调整。


下载遇到问题?可联系客服或反馈
